Page 18 - Catalog Ashbond 2023
P. 18

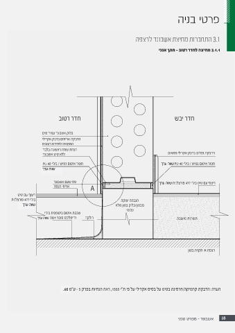
הינב יטרפ













































                                                                                   ךרע הווש
                       ךרע הווש


                                                                                  ךרע הווש





             ךרע הווש


                    ךרע הווש




















                                 .60








                                                                                           ינכט טרפמ - דנובשא    18
   13   14   15   16   17   18   19   20   21   22   23